Het is even stil geweest op het blog. De bouw- en financiële markt is veranderd, en helaas daarmee ook onze plannen.
Sinds we dit huis kochten hebben we een ambitieus plan voor de benedenverdieping bedacht. Hier kort het idee:



Het plan was dus om een deel van de schuur bij de woning te betrekken om hier een zitkamer te maken. De woonkamer wordt dan een brede U-vorm met in het midden de keuken en een glazen pui waar een ‘binnentuintje’ komt. Vanwege de extra ruimte kunnen we nu de originele woonkamer in tweeën delen om hier het toilet en een extra studeerkamer te creëren.
Dat zou er dan zo uit komen te zien:

Helaas zijn de verbouwkosten in 2022/2023 veel duurder dan waar we in 2020 op rekenden. Daarbij is de hypotheekrente ook weer een aantal factoren hoger dan een half jaar geleden. Na een periode van overwegen hebben we besloten niet met het plan door te gaan.
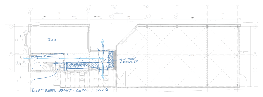
Wat dan wel? De architect heeft nog een laatste maal met ons meegedacht en we zijn tot een kleiner plan gekomen wat we veel meer zelf kunnen doen. Goedkoper en sneller, maar alsnog een fijn en modern plekje.

We behouden de originele vorm van het huis, de berging en de schuur, maar herbouwen wat slecht is naar moderne maatstaven qua comfort en isolatie. Een Z-vormige woonkamer met keuken in de onderste poot. De berging wordt beter geïsoleerd en hoger om zo meer ruimte te creëren en de schuur laten we zo veel mogelijk voor wat het is, al gaan we wel wat praktische verbeteringen doorvoeren zoals een fatsoenlijke garagedeur en een vlakkere vloer.
We zijn dus na een kort winterreces weer voorzichtig begonnen, maar daarover later meer!
