Bouwplaats, melden bij uitvoerder

“Waar zit die uitvoerder dan?“

“Op zijn kantoor!”

Dat zou zo maar eens een gesprek kunnen zijn hier in het schrootjespaleis. We hebben namelijk best behoefte aan een kantoor, zo met al dat thuiswerken en -studeren.

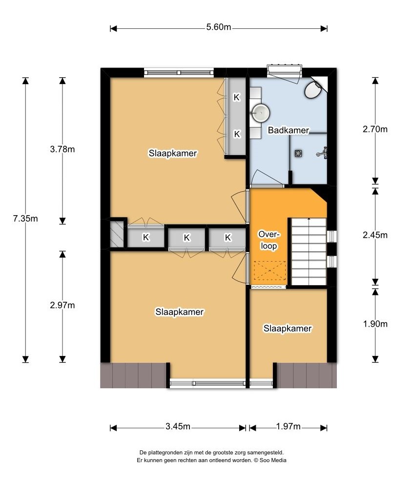
Nadat we de vloer deels vernieuwd hebben op de eerste verdieping hoeft er nog maar weinig te gebeuren om de eerste kamer af te maken. Met af bedoel ik bruikbaar 😉 Ter herinnering, het gaat over het kamertje boven de voordeur, rechtsonder op de plattegrond:

Omdat we de boel een beetje stofvrij willen houden is het essentieel om een deur te monteren en de laatste kieren te dichten. Als eerste heb ik een frame gemaakt bij de muur naar de gang en dit vol met steenwol gestopt. Dit is zwaar en geeft daardoor goede geluidsisolatie.

Vervolgens een gipsplaat op maat gemaakt en aan het frame vastgezet.

Dan hoofdstuk deur. Deuren plaatsen is geen gemakkelijke klus. Het monteren komt erg nauwkeurig, anders hangt de deur scheef en loopt deze niet soepel. Nu is er niets recht in een huis van 96 jaar oud, maar de uitdaging is om dit toch mooi er uit te laten zien.

De originele deuren hebben we niet meer, dus we hebben voor de bovenverdieping nieuwe paneeldeuren gekocht in de stijl van het huis. De deurposten zaten er nog wel allemaal in maar zijn hevig beschadigd en krom.

Als eerste de deur dus aan alle kanten bijgeschaafd om deze passend te maken. Daarna de plekken waar de scharnieren zaten op de deurpost aangepakt. Deze zijn wonderwel exact het goede formaat van de nieuwe scharnieren, alleen zitten de schroefgaten op de verkeerde plek en zijn flink uitgelubberd. Hier kun je geen deur aan ophangen.

Om dit weer stevig te maken heb ik de schroefgaten opgeboord tot 6 millimeter en hier evengrote houten pluggen met zeer sterke constructielijm in gelijmd. Zodra de lijm droog was de pluggen vlak met de deurpost afgezaagd om zo weer een ‘massief’ houten ondergrond te hebben. Hier heb ik vervolgens het nieuwe scharnier op vastgeschroefd.

Ook het slot van de deur zit op een andere plek dus krijgt een vergelijkbare vul-behandeling.

Omdat de deuren nieuw zijn zitten hier nog geen uitsparingen voor de scharnieren in. Na deze afgetekend te hebben heb ik de omtrek ingebeiteld waarna ik de uitsparing van het scharnier verder met de beitel kon maken. Zodra de uitsparing op maat en netjes was kon hier het andere deel van het scharnier ingeschroefd worden.

Vervolgens de deur opgehangen en het loopslot in de deur gezet, voorzien van een oude klink die ik nog had liggen.

Hiermee op de andere kant van de deurpost de uitsparing voor de schoot gemaakt en de sluitplaat gemonteerd.

Met wat oude tapijttegels die van Corine en Max gekregen hebben, een Ikea Billy van 10 euro op marktplaats en wat meubeltjes van één van de werkplekken beneden presenteer ik u: ons kantoor!

Laat de groothoeklens je niet bedotten, de kamer meet amper 1,90 bij 1,95 meter, maar het geeft ons de mogelijkheid om even in rust te studeren/werken… al is het maar voor een paar maanden.

Het plan is namelijk om rond de jaarwisseling op de eerste verdieping te gaan wonen zodat we beneden kunnen verbouwen, en dan wordt dit kamertje weer omgebouwd tot tijdelijke de keuken 🙂

3 gedachten over “Bouwplaats, melden bij uitvoerder

  1. Mama/Marianne's avatar

    Gefeliciteerd ! Eén ruimte voor nu gebruiksklaar. Dat er nog velen mogen volgen !
    Mooi werk geniet van de rust die deze ruimte jullie biedt !

    Like

  2. Joep's avatar

    Goed bezig!
    Nu nog een koffiezetapparaat op kantoor 🙂

    Like

  3. Hedie's avatar

    Hallo Siebrand en Anna,
    Knap gedaan, alleen vraag ik me af hoe je bijschaafd, Dit is mij nóóit gelukt,het werd wel steeds korter.
    Ook het verlichtingsplan ziet er prachtig uit, heel sfeervol.
    Groet Arie

    Like

Plaats een reactie

Ontwerp een vergelijkbare site met WordPress.com
Aan de slag
search previous next tag category expand menu location phone mail time cart zoom edit close